Masía con varias viviendas en La Selva del Camp en plena naturaleza con 210m² útiles
Masía singular con varias viviendas en plena naturaleza con 210…
€320,000
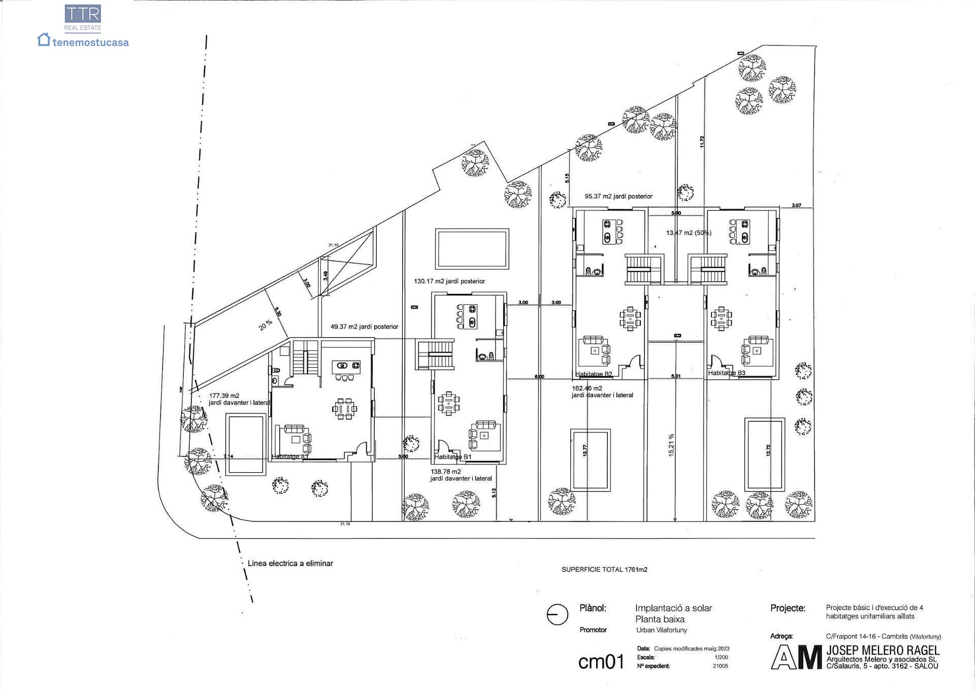
Carrer de Fraipont, 29, Vilafortuny, Cambrils, Bajo Campo, Tarragona, Cataluña, 43850, España
En Venta
€860,000










































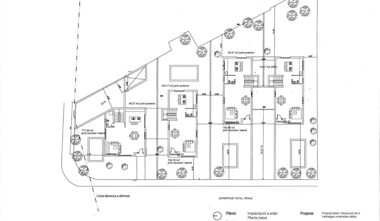
Zona ideal para primera residencia por su tranquilidad, cercanía a colegios, centros comerciales, centro médico y zonas deportivas, todo ello junto a la preciosa ciudad de Cambrils, la cual además del encanto de su puerto, club náutico y excelente gastronomía, cuenta con servicios de máxima calidad.
Constituye también una fantástica opción para segunda residencia por su envidiable tranquilidad, zonas verdes y próximidad a la playa, a la cual podrá acceder a pie desde su vivienda.
Masía singular con varias viviendas en plena naturaleza con 210…
€320,000
Camping en finca de de 18414 m2Edificio de recepción de…
€795,000
Poseer una casa es la piedra angular de la riqueza... tanto la riqueza financiera como la seguridad emocional.
Suze OrmanWhatsApp us